LDLM 、LDMM、LDMS型離線清灰脈沖袋式除塵器
丁寶勤 13906276368(技術)
電話:0513-88400999 傳真:0513-88400998 郵箱:jszk@vip.163.com


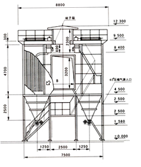
離線清灰解決了常規脈沖袋式除塵器存在的“粉塵再附與失控”問題,大大提高了濾袋清灰效果,從而提高過濾速度,節省清灰能耗和延長濾袋壽命,是我們具有特色的專有技術產品。
除塵器特別適用于質輕、粒細、粘性粉塵的空氣凈化。
|
型號 |
規格 |
過濾面積(m2) |
濾袋數量(條) |
分組數目 |
處理風量(m3/h) |
過濾風速(m/min) |
脈沖閥個數(個) |
壓氣量(m3/min) |
重量(T) |
布置形式 |
|
LDML-Ⅰ2160 |
2160 |
1440 |
48 |
259200 |
2 |
48 |
1.1 |
81 |
||
|
LDML-Ⅰ2520 |
2520 |
1680 |
56 |
302400 |
2 |
56 |
1.3 |
94 |
||
|
LDML-Ⅰ2880 |
2880 |
1920 |
64 |
345600 |
2 |
64 |
1.5 |
107 |
||
|
LDML-Ⅰ3240 |
3240 |
2160 |
72 |
388000 |
2 |
72 |
1.65 |
121 |
||
|
LDML-Ⅰ3600 |
3600 |
2400 |
80 |
432000 |
2 |
80 |
1.82 |
134 |
||
|
LDML-Ⅰ3960 |
3960 |
2640 |
88 |
475200 |
2 |
88 |
2.0 |
148 |
||
|
LDML-Ⅰ4350 |
4350 |
2880 |
96 |
518400 |
2 |
96 |
2.2 |
161 |
||
|
LDML-Ⅰ4680 |
4680 |
3120 |
104 |
561600 |
2 |
104 |
2.4 |
174 |
||
|
LDML-Ⅰ5060 |
5060 |
3360 |
112 |
604800 |
2 |
112 |
2.55 |
188 |
||
|
LDML-Ⅰ5400 |
5400 |
3600 |
120 |
64800 |
2 |
120 |
2.72 |
200 |
||
|
LDML-Ⅰ5760 |
5760 |
3840 |
128 |
691200 |
2 |
128 |
2.9 |
212 |
||
|
LDML-Ⅱ2880 |
2880 |
1440 |
72 |
345600 |
2 |
72 |
1.5 |
102 |
||
|
LDML-Ⅱ3360 |
3360 |
1680 |
84 |
403200 |
2 |
64 |
1.75 |
119 |
||
|
LDML-Ⅱ3840 |
3840 |
1920 |
96 |
460800 |
2 |
96 |
2.00 |
136 |
||
|
LDML-Ⅱ4320 |
4320 |
2160 |
108 |
518400 |
2 |
108 |
2.25 |
152 |
||
|
LDML-Ⅱ4800 |
4800 |
2400 |
120 |
576000 |
2 |
120 |
2.50 |
169 |
||
|
LDML-Ⅱ5280 |
5280 |
2640 |
132 |
633600 |
2 |
132 |
2.75 |
185 |
||
|
LDML-Ⅱ5760 |
5760 |
2880 |
144 |
691200 |
2 |
144 |
3.00 |
202 |
||
|
LDML-Ⅱ6240 |
6240 |
3120 |
156 |
748800 |
2 |
156 |
3.25 |
219 |
||
|
LDML-Ⅱ6720 |
6720 |
3360 |
168 |
806400 |
2 |
168 |
3.50 |
242 |
||
|
LDML-Ⅱ7200 |
7200 |
3600 |
180 |
864000 |
2 |
180 |
3.75 |
252 |
||
|
LDML-Ⅱ7680 |
7680 |
3840 |
192 |
921600 |
2 |
192 |
4.00 |
267 |
||
|
LDMM225 |
225 |
200 |
5 |
33750 |
2.5 |
10 |
0.20 |
11.4 |
單列 |
|
|
LDMM270 |
270 |
240 |
6 |
40500 |
2.5 |
12 |
0.24 |
13.1 |
||
|
LDMM315 |
315 |
280 |
7 |
47250 |
2.5 |
14 |
0.28 |
15 |
||
|
LDMM360 |
360 |
320 |
8 |
54000 |
2.5 |
16 |
0.32 |
17.1 |
||
|
LDMM405 |
405 |
360 |
9 |
60750 |
2.5 |
18 |
0.36 |
19.2 |
||
|
LDMM450 |
450 |
400 |
10 |
67500 |
2.5 |
20 |
0.40 |
21.1 |
||
|
LDMM540 |
540 |
480 |
2×6 |
81000 |
2.5 |
24 |
0.48 |
26.4 |
雙列 |
|
|
LDMM630 |
630 |
560 |
2×7 |
94500 |
2.5 |
28 |
0.56 |
31.2 |
||
|
LDMM720 |
720 |
640 |
2×8 |
108000 |
2.5 |
32 |
0.64 |
34.7 |
||
|
LDMM810 |
810 |
720 |
2×9 |
121500 |
2.5 |
36 |
0.72 |
39.5 |
||
|
LDMM900 |
900 |
800 |
2×10 |
135000 |
2.5 |
40 |
0.80 |
42.8 |
||
|
LDMS50 |
50 |
50 |
5 |
7500 |
2.5 |
5 |
0.05 |
2.5 |
單列 |
|
|
LDMS60 |
60 |
60 |
6 |
9000 |
2.5 |
6 |
0.06 |
2.8 |
||
|
LDMS70 |
70 |
70 |
7 |
10500 |
2.5 |
7 |
0.07 |
3.3 |
||
|
LDMS80 |
80 |
80 |
8 |
12000 |
2.5 |
8 |
0.08 |
3.7 |
||
|
LDMS90 |
90 |
90 |
9 |
13500 |
2.5 |
9 |
0.09 |
4.1 |
||
|
LDMS100 |
100 |
100 |
10 |
15000 |
2.5 |
10 |
0.1 |
4.8 |
||
|
LDMS120 |
120 |
120 |
2×6 |
18000 |
2.5 |
12 |
0.12 |
5.9 |
雙列 |
|
|
LDMS140 |
140 |
140 |
2×7 |
21000 |
2.5 |
14 |
0.14 |
6.9 |
||
|
LDMS160 |
160 |
160 |
2×8 |
24000 |
2.5 |
16 |
0.16 |
8.4 |
||
|
LDMS180 |
180 |
180 |
2×9 |
27000 |
2.5 |
18 |
0.18 |
8.6 |
||
|
LDMS200 |
200 |
200 |
2×10 |
30000 |
2.5 |
20 |
0.20 |
9.7 |
||



.jpg)











